L'Haÿ-Les-Roses station, line 14

France, 2024
Architecture
L'Haÿ-Les-Roses station, line 14

Iceberg © NASA ICE

Iceberg © IA image generator

You, 2007 © Urs Fischer, photo Ellen Page Wilson

COMME des GARCONS HOMME 2 Postcard Set © Katsumi Komagata

Le Magasin pittoresque, 1852, p. 397, engraving after a drawing © É. Fox

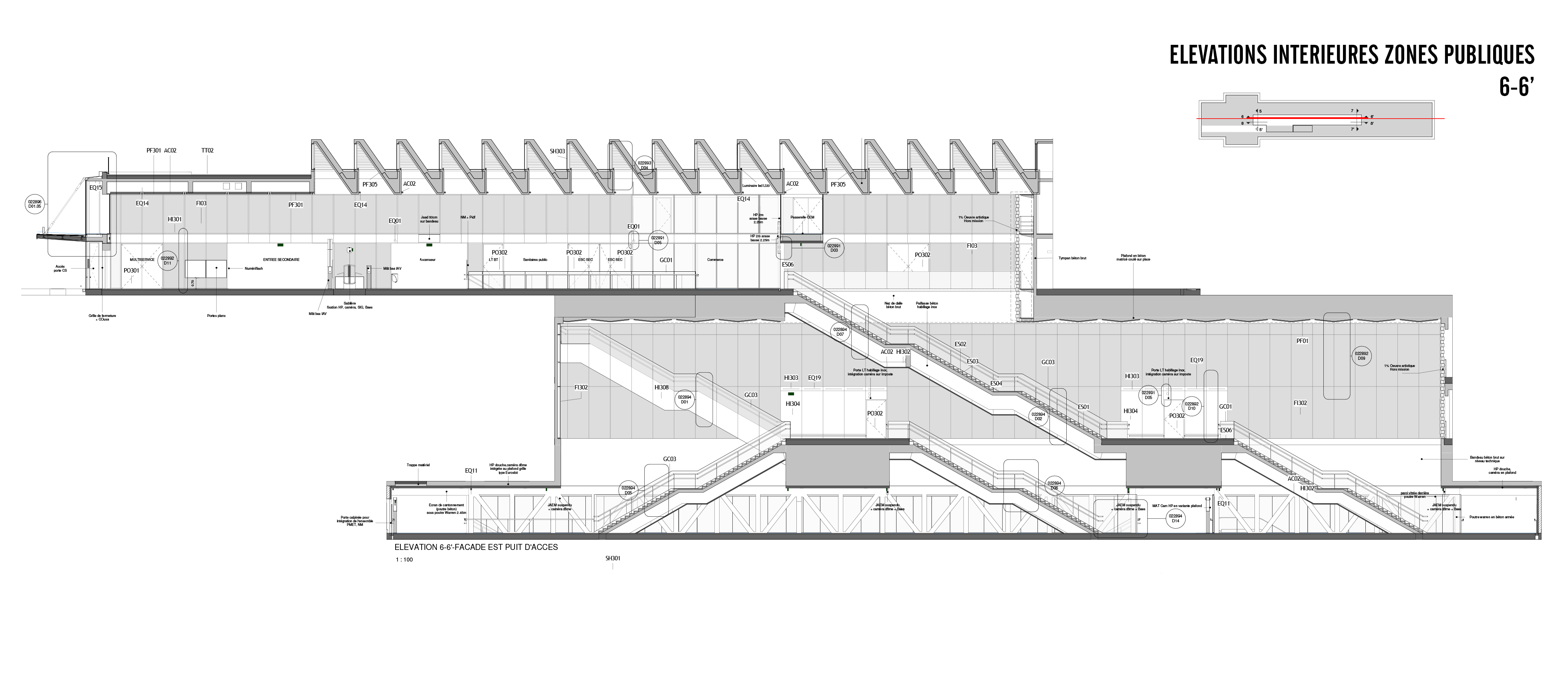
Elevation, L'Haÿ-les-Roses station, Franklin Azzi © Franklin Azzi

Holes, Middleton Woords, Yorkshire, 1981 © Andy Goldsworthy
© Mary Miss's, 1977-1978 Perimeters, Pavilions, Decoys
Architecture Without Architects, 1964-1965 © Bernard Rudofsky

Untitled, 1969 © Michael Heizer

Yaodong © S. Huiying

Emek Ayalon, 1971 © Micha Ullman

Ascension, 2012 © Allan Wexler

Rock Bottom, 2014 © Allan Wexler

Breaking Ground, 2011-2014 © Allan Wexler

Breaking Ground, 2011-2014 © Allan Wexler

Hong Kong © Romain Jacquet-Lagrèze

“Shafts VIa” © HR Giger
L'Haÿ-les-Roses Train Station, construction site, Franklin Azzi © Franklin Azzi
© Mountain, 1969
Modular cliff rock © Alen Vejzovic

Alpine Scenery © Edward Theodore Compton
L'Haÿ-les-Roses Train station, construction site, Franklin Azzi © Franklin Azzi

Vertical Galleries in Dinorwic Quarry © Simon Butterworth

Vista de Líthica - Pedrera de s'Hostal, 2011 © Chillida

Concave 06 (Poncé), 2012 © Simon Boudvin

Arrival of the Claire tunnel boring machine, L'Haÿ-les-Roses station, Franklin Azzi © Franklin Azzi

Garmsar salt mine, Semanan province, Iran © Hadinik

Artyomsol salt mine, Donetsk region, Ukraine © Amos Chapple for RFE/RL

Egypt © Kazuyoshi Nomachi
© Rights reserved
Nebatean ruins of Mada’in Saleh, Saudi Arabia (ca. 1st century C.E.) © Photo circa 1960

Inis Meain (I-II), 2005 © Sean Scully

Keiji Uematsu, Interval, three Stones, 1976 © keiji uematsu, Courtesy of Galerie baudoin lebon, Paris
Building site, L'Haÿ-les-Roses station, Franklin Azzi © Franklin Azzi

Tanikawa House, The pursuit of anti-space, 1974 © Kazuo Shinohara

Washington DC, 1964 © Ray K. Metzker
© CNC Houdini & Redshift
Architecture, laser print on paper © Kunel Gaur
© Totonoerunext / Ryosuke Yazaki, 2021
Jardim Ipe school, São Bernardo do Campo, 1966 © Decio Tozzi

Jardim Ipe school, São Bernardo do Campo, 1966 © Decio Tozzi

As a Wonder © Al Brydon

Heaven gate in China—Tianmen Mountain, Zhangjiajie © Rights reserved

Inside the Royal Hungarian Salt Mine of Désakna © Rights reserved
© Michael Kenna, rights reserved
Haus Mit Raketen (Maison avec des fusées), 1981 © Roman Signer

Sun Beams Into Grand Central Station, 1930 / 2022 © Hal Morey

Building site, L'Haÿ-les-Roses station, Franklin Azzi © Franklin Azzi
© Renato Nicolodi
© Dune set design
Orpheus, Hellerau, 1913 © Adolphe Appia (1862-1928)

La fonction oblique © Claude Parent et Paul Virilio
Building site, L'Haÿ-les-Roses station, Franklin Azzi © Franklin Azzi
The Cameraman, 1928 © Buster Keaton
© Robert Irwin
Axonometry of flows, L'Haÿ-les-Roses station, Franklin Azzi © Franklin Azzi
© Pacman
Vol. 03 'Bok 2a und bok 2b', 1973 © Roth Dieter, published by Forlag ed

Untitled from Weavings Tecelares, 1959 © Lygia Pape

The NASA Ames, 1945 © NACA

Year Zero, Issue Three © Rights reserved
© Rights reserved
Akira © Katsuhiro Otomo

Looking down the throat of a Wind Tunnel GPN-2000-001762 © NACA

Wind Tunnel in Chalais Meudon, 1935 © Rights reserved
